Architectenbureau/Ontwerper: HVE-architecten & Studio Leon Thier
Opdrachtgever: Stebru
Aannemer: Stebru

Binck Poort startte als plan om het iconische Van Klingerenpaviljoen te herbouwen. Het werd zoveel meer. Nu fungeert het herboren paviljoen als blikvanger van een complex dat wonen, werken en recreëren combineert. Een landmark van staal en glas dat de Haagse Binckhorst voorziet van een iconische entree.
Het Haagse industriegebied Binckhorst wordt ontwikkeld tot een nieuwe stadswijk, waar mensen werken, wonen en elkaar ontmoeten. Met de oplevering van Binck Poort heeft deze wijk een iconische entree gekregen. Het transparante gebouw met industriële uitstraling biedt ruimte aan woningen, bedrijven en horeca èn aan het iconische Van Klingerenpaviljoen, dat hiermee van de sloop gered werd.
Het paviljoen van architect Frank van Klingeren werd eind jaren zestig ontworpen als uitbreiding van de jeugdherberg in het Haagse Ockenburg. Van Klingeren ontwierp een zo transparant mogelijk gebouw; een open ruimte van staal en glas, waarin – naar zijn filosofie van ‘ontklontering’ - alles gericht was op interactie en ontmoetingen. Toen het iconische gebouw na de verhuizing van de jeugdherberg in verval raakte, waren architecten Leon Thier en Gerrit van Es vastbesloten het een nieuw leven te geven. Door hun actie besloot de gemeente het paviljoen te demonteren. Maar liefst 16 jaar wachtte het op een nieuwe functie. Alle stalen onderdelen netjes genummerd, als een reusachtige mecano-doos.
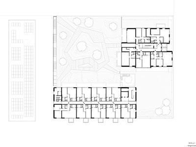
De architecten bleven onvermoeibare ambassadeurs van het paviljoen. Met een aantal partijen, waaronder ontwikkelaar Stebru en de Gemeente Den Haag, vormden zij een denktank om tot een haalbaar, bouwbaar project te komen. De gemeente bood een locatie bij de entree van de Binckhorst, waar ruimte was voor het paviljoen èn meer. Zo ontstond Binck Poort. Een complex dat zowel de stijl van het geredde paviljoen omarmt, als de filosofie, waarbij ontmoetingen tussen groepen en functies centraal staan. In het herbouwde paviljoen is ruimte voor horeca en short stay appartementen. Daarnaast omvat het complex twee woongebouwen (30% sociale huur, 20% gereguleerde middenhuur, 50% vrije sector) en een gemeenschappelijke daktuin. De plint is bestemd voor bedrijven.
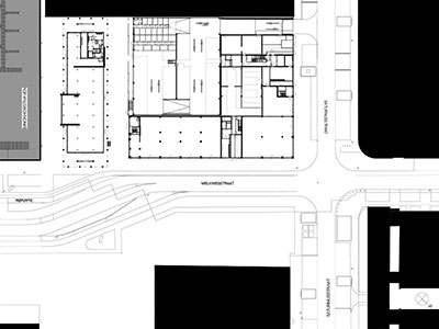
Binck Poort ligt aan de kade van de Binckhaven, langs een van de entreestraten. Hoewel het gebied nog in ontwikkeling is, valt op hoe goed het gebouw hier op zijn plek is. Het stalen paviljoen met zijn glazen gevels past als vanzelfsprekend bij dit stoere gebied en heeft door zijn transparantie ook de moderne, creatieve uitstraling die de wijk in de toekomst moet krijgen. Dat wordt versterkt door de bijna 20 meter lange naoorlogse betonsculptuur van Pierre van Soest dat in Amsterdam werd gered van de sloop uit een ander gebouw van Van Klingeren. Per schip kwam het naar Den Haag, waar het werd geïntegreerd in het herbouwde paviljoen.
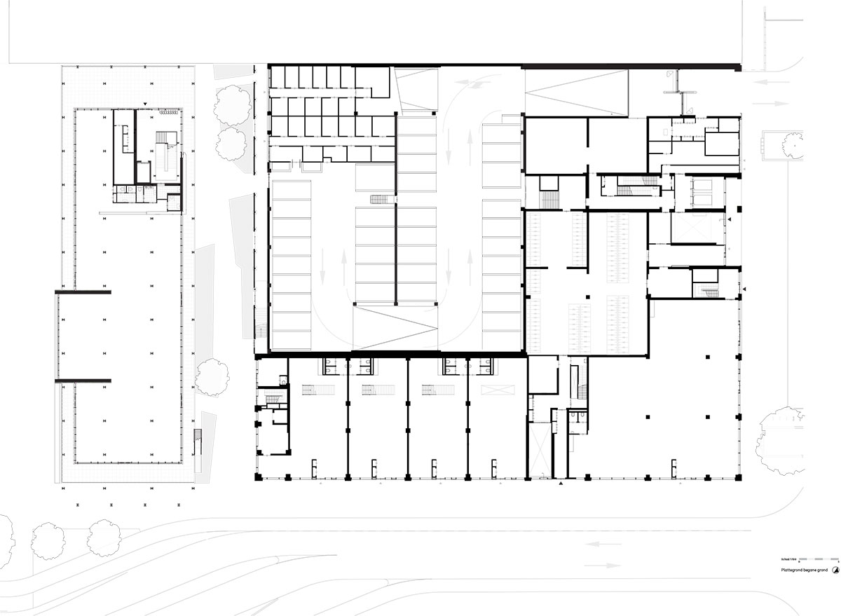
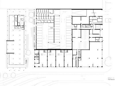
Aan de nieuwe entree van Binckhorst werd in 2024 Binck Poort opgeleverd. Met als blikvanger van staal en glas het herbouwde ‘Van Klingerenpaviljoen’, voormalig onderdeel van jeugdherberg Ockenburgh. Het ontwerp bestaat uit een mix van programma’s: aan de kade het Van Klingerenpaviljoen met horeca en short stay appartementen. Daarnaast een flexibele plint van vier verdiepingen commerciële ruimte. Op deze plint twee woongebouwen: een slanke toren van 72 meter met appartementen voor de vrije sectorhuur en een schijfvormig gebouw van 42 meter hoogte met huurappartementen in het sociale segment. Met op het dak van de onderliggende parkeergarage een gezamenlijke tuin voor alle gebruikers.
De architectuur van alle bouwdelen is geïnspireerd op het materiaalgebruik en de transparantie van het Van Klingerenpaviljoen en het stoere karakter van het voormalige industrieterrein. De plint kreeg een open uitstraling met hoge glazen puien, en ook de entrees van beide woongebouwen werden hoog en open gehouden. De toren en de schijf staan bewust niet op de straathoek, zodat het zonlicht op de kruising valt. De verschillende bouwvolumes liepen voor op ‘Eyeline, Skyline’ de Haagse visie op hoogbouw. Uitgangspunt daarvan is de inzet om de ‘skyline’ van Den Haag te verbinden met de belevingskwaliteit van de stad op ooghoogte en de ruimte rond het gebouw: de ‘eyeline’.
Van Klingeren zag zijn gebouwen als knooppunten van ontmoetingen. De mix aan functies van Binckpoort omarmt dat gedachtengoed. Met horeca op de begane grond en een terras aan het water, trekt het paviljoen bezoekers het gebied binnen. De glazen puien van de plint betrekken voorbijgangers bij de commerciële activiteiten binnen. En ook de daktuin fungeert als ontmoetingsplek.
Het hergebruik van het Van Klingerenpaviljoen is al bijzonder duurzaam en circulair. Voor de energievoorziening werd een WKO aangelegd, die in de toekomst nog twee soortgelijke projecten van energie kan voorzien. In de hof tussen de gebouwen schermt een groene gevel met klimplanten de parkeergarage af. Daarlangs leidt een trap naar de daktuinen. Deze zijn klimaatadaptief en natuurinclusief, met o.a. een waterberging die ook warmteregulerend werkt. Onder de geplaatste zonnepanelen op de woongebouwen, is sedum toegepast. Bij het ontwerp scoorde het gebouw twee keer beter dan de duurzaamheidsambitie van de gemeente Den Haag.
Het project ontving in 2024 de Haagse Woonprijs.
Adres: Hoek Melkwegstraat, Saturnusstraat, Binckhorst Den Haag
Datum oplevering: juli 2024
Programma: Aantal appartementen: 192, Aantal parkeerplaatsen: 196, Aantal fiets parkeren: 370, Commerciële ruimte: 4855, waarvan horeca Paviljoen 612 m2