Architectenbureau/Ontwerper: LEVS architecten met Zecc Architecten en WE architecten
Opdrachtgever: De Zuid C.V. (MRP Development en VORM Ontwikkeling)
Aannemer: VORM

Aan de Derde Haven in Scheveningen ontstaat gefaseerd De Zuid. Het voormalige industriële havengebied transformeert hier naar een maritieme wijk met 400 woningen en maritieme bedrijvigheid. De Zuid bestaat uit meerdere fasen die opgeleverd, in aanbouw of in ontwikkeling zijn. De fases ZuidHaven en ZuidKade zijn gereed en vormen samen het markante Havenfront De Zuid.
LEVS architecten maakte in 2013 op basis van het masterplan van Urbis het structuurontwerp voor De Zuid en is sindsdien coördinerend en gedeeltelijk ontwerpend architect in samenwerking met telkens andere architectuurbureaus. Zo ontstaat er stapsgewijs een nieuwe woonwijk met een samenhangende maar toch diverse architectuur.
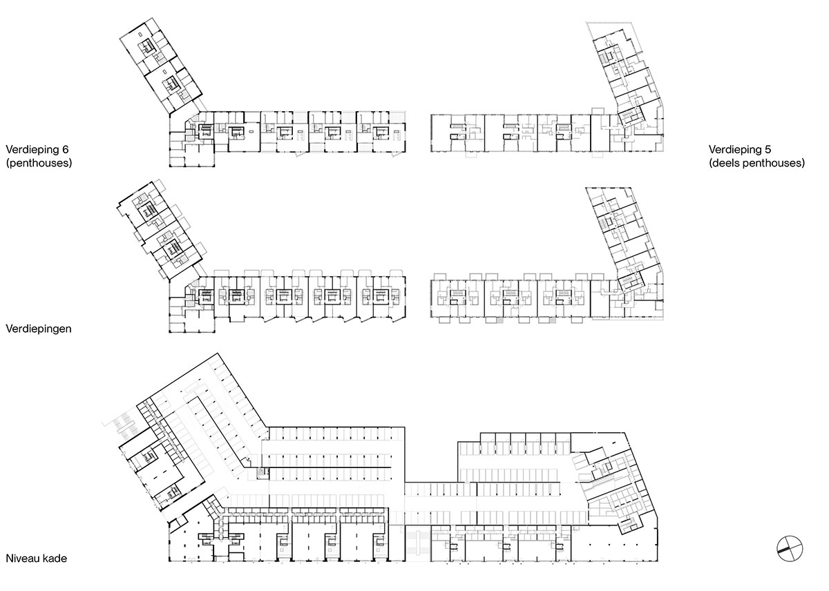
Havenfront De Zuid is een samenwerking tussen LEVS, Zecc Architecten en WE architecten. Het heeft een variatie aan appartementen en penthouses en is gerealiseerd in twee fases. Door nauwe onderlinge afstemming tonen de verschillende gevels zowel architectonische samenhang als een eigen identiteit. Erkers in een verticale ritmiek en een plint met uitnodigende entrees en haven-gerelateerde bedrijvigheid geven gezamenlijk gestalte aan de gevels. Een doorlopende plint met maritieme bedrijvigheid refereert naar het stoere karakter van de voormalige haven en verbindt de verschillende plandelen.
Op deze locatie, aan de noordzijde van De Zuid, met uitzicht op de zee, duinen en de haven, was het realiseren van goede buitenruimtes een belangrijk uitgangspunt. Alle woningen zijn aan de zeezijde voorzien van transparante erkers, patio’s of loggia’s zodat bewoners beschut zitten tegen de wind. Naar het zuiden hebben de woningen riante balkons met uitzicht op een autovrij, semiopenbaar binnengebied met grondgebonden woningen. Deze groene oase ligt verhoogd ten opzichte van de kade en boven op de grote, gezamenlijke parkeergarage.
De reeds bestaande omgeving rondom de haven kenmerkt zichzelf door industriële gebouwen en accenten. Op de westelijke hoek, duidelijk zichtbaar vanaf de strandopgang, ligt een hoogteaccent op een industriële plint van stalen portalen. Het oostelijke kopgebouw van Havenfront voegt hier een tweede nieuwe accent aan toe. De architectuur combineert industriële en stedelijke architectuur van monolithisch beton en verfijnde baksteen met grote glaspuien. In samenhang geeft Havenfront De Zuid een krachtig silhouet waar het wonen met uitzicht op zee en duinen gecombineerd wordt met de beschutting van een intiem binnengebied.
Adres: Hellingkade 66, 2593 WC Den Haag
Datum oplevering: Maart 2025
Programma: 156 appartementen en 2.400 m² commerciële ruimte met een parkeergarage onder een gezamenlijk binnenterrein.