Architectenbureau/Ontwerper: Architekten Kombinatie
Opdrachtgever: Ten Brinke Vastgoed
Aannemer: Ten Brinke Bouw

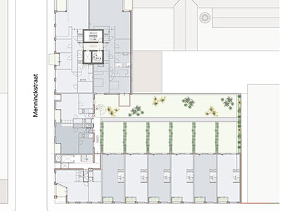
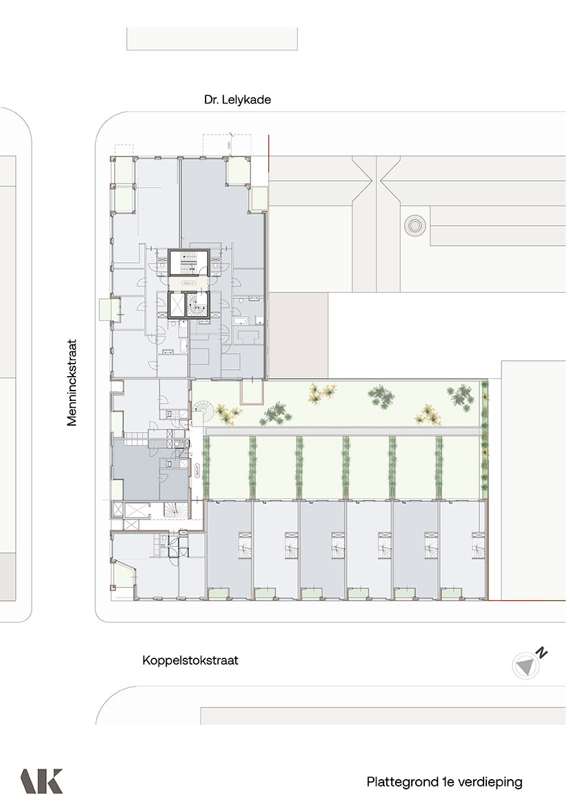
Langs de kades van de Tweede Binnenhaven is de afgelopen jaren volop gebouwd. De veelal karakteristieke ‘woonpakhuizen’ bestaan uit verschillede volumes, en variëren in hoogte tot zo’n 24 à 30 meter. De kades hebben een stoer karakter gekregen en de stille werkhaven van vroeger is in de loop van de tijd uitgegroeid tot een levendig deel van de stad, pal aan de kust. Het project Beaufort bestaat uit 22 woningen aan de Dr. Lelykade, Menninckstraat en Koppelstokstraat. Aan de bedrijvige Dr. Lelykade kade is een luxe appartementencomplex gepositioneerd, met 10 royale appartementen die uitkijken op haven en zee. Door de riante balkons kunnen de bewoners optimaal genieten van het uitzicht en de zilte zeelucht. Op de begane grond is een commerciële ruimte waar een gezellige ijssalon is gevestigd. De grote raampartijen zorgen voor een open, uitnodigende sfeer en vormen een aantrekkelijk beeld voor de passanten op de kade. Maar ook voor de bezoekers die binnen in de ijssalon zitten, kan er zo genoten worden van de sfeer in de haven, tijdens zonnige dagen maar ook op een stormachtige dag. Aan de andere kant van het project ligt de Koppelstokstraat, een rustige maar knusse woonstraat. Aan deze kant zijn 6 stadswoningen toegevoegd, allemaal met 3 woonlagen en een daktuin aan de achterzijde. Aan de voorkant hebben de woningen nog een klein balkon, zodat je aan beide kanten van het zonnetje kunt genieten.
De Menninckstraat is de verbindende schakel tussen de Koppelstokstraat en de Dr. Lelykade en overbrugd een hoogteverschil van maar liefst 1,8 meter. Een slim ontworpen, compact appartementenblokje slaat hier de brug tussen het stoere havengebied en de kleinschalige woonstraat. Samen omsluiten de woondelen de parkeervoorziening en daktuin binnenin het bouwblok. Hoewel de omliggende straten ieder dus een heel eigen karakter hebben, sluit het project aan alle kanten mooi aan bij de omgeving. Het baksteen is zowel in de woonstraat als aan de kade een veelgebruikt materiaal, maar de kleur van het metselwerk en het architectonische beton geeft het gebouw zijn eigenheid. Door de vormgeving van verschillende elementen en dit specifieke materiaalgebruik vormen de verschillende onderdelen een solide eenheid. Toch is er een grote diversiteit in woningen waardoor er aan veel verschillende bewoners een fijne plek wordt geboden. Een niet zo lang geleden nog verlaten en vervallen hoekje is getransformeerd tot een sfeervolle en levendige toevoeging aan dit geliefde stukje Scheveningen.
Adres: Dr. Lelykade 198-202, 2583 CP, Den Haag
Datum oplevering: Februari 2025
Programma: 16 appartementen, 1 maisonette en 6 grondgebonden stadswoningen.